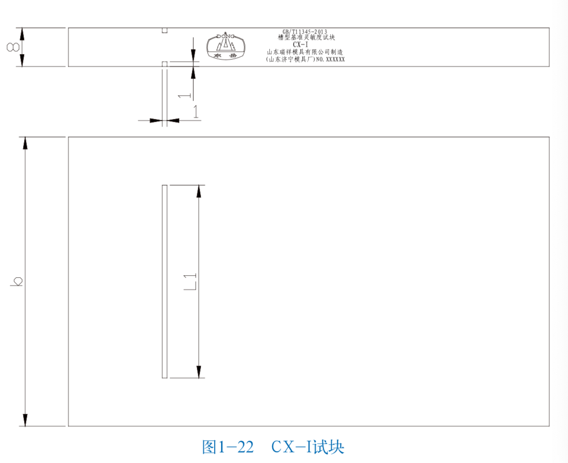
CX-I 槽型基准灵敏度试块

山东瑞祥模具 生产的CX-I 槽型基准灵敏度试块 依据GB/T 11345 标准 适用于斜探 头(折射角度)检测焊缝厚度为 8mm~15mm时灵敏度的设定。
  • 标准: GB/T 11345—2013《焊缝无损检测 超声检测 技术、检测等级和评定》

国家标准GB/T 11345—2013《焊缝无损检测 超声检测 技术、检测等级和评定》、GB/T 29711—2013 《焊缝无损检测 超声检测 焊缝中的显示特征》、GB/T 29712—2013《焊缝无损检测 超声检测 验收等 级》于2013年9月18日颁布、2014年6月1日实施。该系列标准为推荐性标准,分别对应焊缝超声检测的技术方法 和检测等级、显示特征判定以及焊缝质量验收三个方面,代替GB/T 11345—1989标准。标准中明确给出设定参 考灵敏度的要求,但没有给出标准试块图纸,因此各行业需根据使用不同,依据标准设计了多种试块,为规范 试块设计,汲取各行业设计之优点最终设计出整套标准试块。本套试块为专利产品,本手册仅供参考学习,请 勿用于任何商业活动。

依据标准内容要求试块共分五大类,共计28块。(φ3mm横孔灵敏度试块、纵波灵敏度试块、横波灵敏度 试块、槽型基准灵敏度试块、串列式试块。)

槽型基准灵敏度试块
火马电竞平台官网司|试块

该试块依据标准中技术3要求而设 计,该类试块以宽度和深度均为1mm 的矩形槽作为基准反射体,适用于斜探 头(折射角度≥70°)检测焊缝厚度为 8mm~15mm时灵敏度的设定。槽型灵 敏度试块的设计内容见下表。

序号

试块 代号

试块 名称

标准反射体 (mm)

检测范围 (mm)

1

CX-I

槽型基准灵敏度试块

1×1×40 矩形槽

8≤t<15


电话咨询
邮件咨询
在线地图
QQ客服